6670 PERRY ST, Hollywood
$534,900 USD 3 2
Pictures
Map













































Contact us
Schedule Tour
Address | 6670 PERRY ST, Hollywood |
Building Name | PALM LANE VILLA NO 5 |
Type of Property | Single Family Residence |
Property Style | Pool Only |
Price | $534,900 |
Previous Price | $550,000 (33 days ago) |
Property Status | Active |
MLS Number | A11858767 |
Bedrooms Number | 3 |
Full Bathrooms Number | 2 |
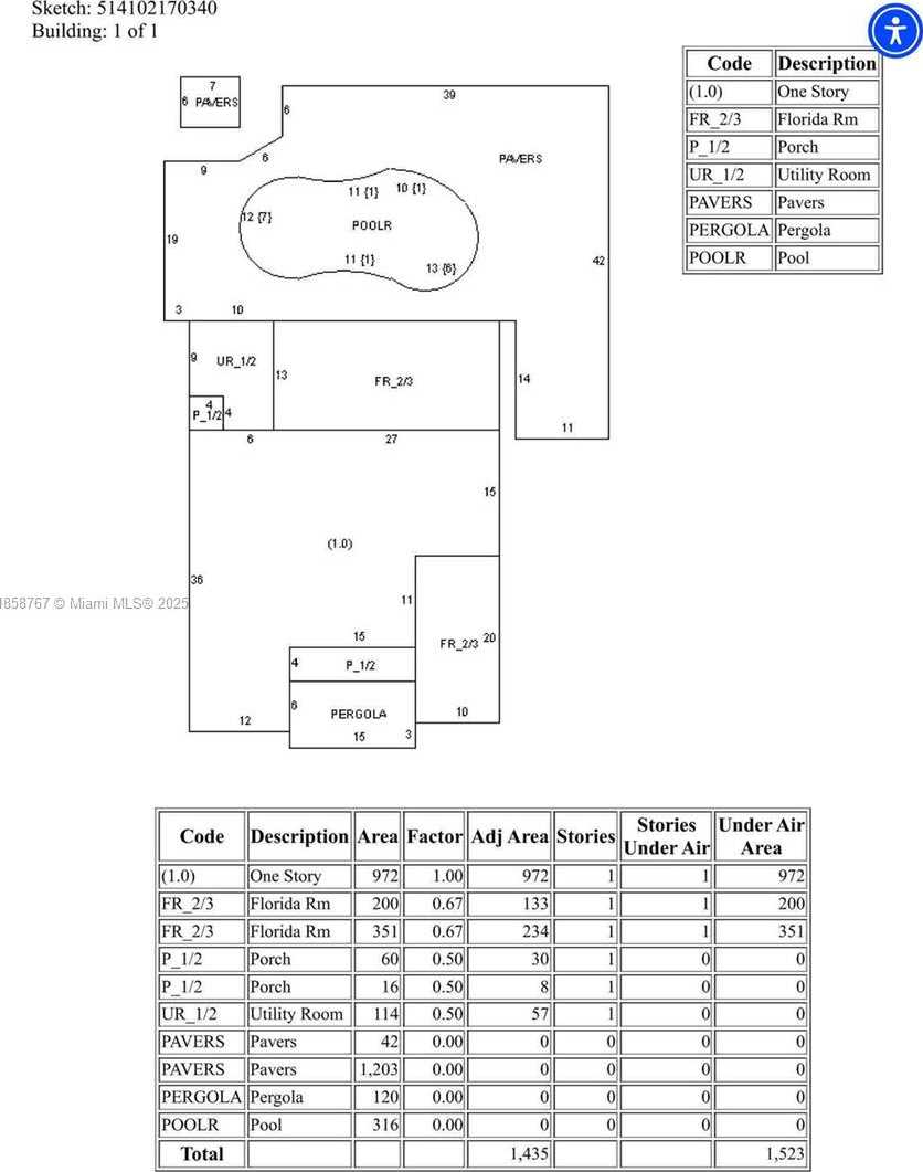
Living Area | 1523 |
Lot Size | 6230 |
Year Built | 1958 |
Folio Number | 514102170340 |
Zoning Information | RS-6 |
Days on Market | 59 |
Detailed Description: Cozy corner 3/2 with refinished inground pool nested in the well-established and thriving neighborhood of Driftwood. This home is larger than most Driftwood Bungalows with nearly 1600 sq. Ft. It has been well maintained with updated tile floors, kitchen, hurricane impact windows / doors, security, privacy fence and a mango fruit tree. Its proximity to a host of shopping makes everything very convenient. You can see the Hard Rock Casino’s Guitar Shaped hotel and its beaming light from your home from 1.5 miles away. Also, you are 20 min to Hollywood Beach. Great space with a great pool!
Internet
Pets Allowed
Property added to favorites
Loan
Mortgage
Expert
Hide
Address Information
State | Florida |
City | Hollywood |
County | Broward County |
Zip Code | 33024 |
Address | 6670 PERRY ST |
Section | 2 |
Zip Code (4 Digits) | 1916 |
Financial Information
Price | $534,900 |
Price per Foot | $0 |
Previous Price | $550,000 |
Folio Number | 514102170340 |
Tax Amount | $1,687 |
Tax Year | 2024 |
Full Descriptions
Detailed Description | Cozy corner 3/2 with refinished inground pool nested in the well-established and thriving neighborhood of Driftwood. This home is larger than most Driftwood Bungalows with nearly 1600 sq. Ft. It has been well maintained with updated tile floors, kitchen, hurricane impact windows / doors, security, privacy fence and a mango fruit tree. Its proximity to a host of shopping makes everything very convenient. You can see the Hard Rock Casino’s Guitar Shaped hotel and its beaming light from your home from 1.5 miles away. Also, you are 20 min to Hollywood Beach. Great space with a great pool! |
Property View | Garden, Pool |
Design Description | Detached, One Story |
Roof Description | Flat Tile, Shingle |
Floor Description | Carpet, Clay, Tile |
Interior Features | First Floor Entry, Built-in Features, Other, Stacked Bedroom, Den / Library / Office, Family Room, Utility Roo |
Exterior Features | Lighting |
Furnished Information | Unfurnished |
Equipment Appliances | Electric Water Heater, Microwave, Electric Range, Refrigerator |
Pool Description | In Ground |
Cooling Description | Ceiling Fan (s), Central Air |
Heating Description | Central |
Water Description | Municipal Water |
Sewer Description | Septic Tank |
Parking Description | Detached Carport, Circular Driveway, Driveway |
Pet Restrictions | More Than 20 Lbs |
Property parameters
Bedrooms Number | 3 |
Full Baths Number | 2 |
Living Area | 1523 |
Lot Size | 6230 |
Zoning Information | RS-6 |
Year Built | 1958 |
Type of Property | Single Family Residence |
Style | Pool Only |
Building Name | PALM LANE VILLA NO 5 |
Development Name | PALM LANE VILLA NO 5 |
Construction Type | CBS Construction |
Listed with | Crawford & Co R.E. Svs’s LLC |