4101 #16, Plantation
$29 USD
Pictures
Map


Contact us
Schedule Tour
Address | 4101 #16, Plantation |
Type of Property | Office |
Type of Business | Medical Office, Professional |
Price | $29 |
Property Status | Active |
MLS Number | A11785056 |
Property Size | 60562 |
Lot Size | 60562 |
Year Built | 1974 |
Folio Number | 504101350010 |
Zoning Information | B-HCS |
Days on Market | 183 |
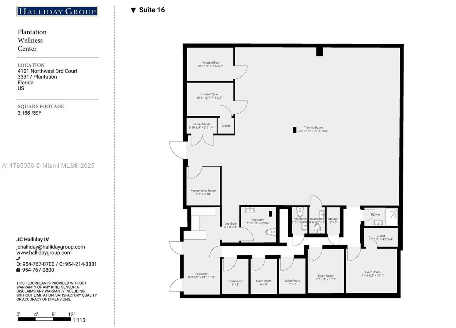
Detailed Description: Second generation medical space (formerly a physical therapy office) available near the heart of Plantation. Located right next to the HCA’s new emergency center.
Internet
Property added to favorites
Loan
Mortgage
Expert
Hide
Address Information
State | Florida |
City | Plantation |
County | Broward County |
Zip Code | 33317 |
Address | 4101 |
Financial Information
Price | $29 |
Price per Foot | $0 |
Folio Number | 504101350010 |
Tax Amount | $215,013 |
Full Descriptions
Detailed Description | Second generation medical space (formerly a physical therapy office) available near the heart of Plantation. Located right next to the HCA’s new emergency center. |
Property parameters
Living Area | 60562 |
Lot Size | 60562 |
Total Acreage | 0.000 |
Zoning Information | B-HCS |
Maximum Leasable Size | 60562 |
Year Built | 1974 |
Type of Property | Office |
Type of Business | Medical Office, Professional |
Listed with | Halliday Grp Rlty Advisors Inc |