10840 NORTH WEST 27TH ST, Doral
$12,000 USD
Pictures
Map












































Contact us
Schedule Tour
Address | 10840 NORTH WEST 27TH ST, Doral |
Type of Property | Industrial |
Type of Business | Industrial, Office / Warehouse Combination |
Business Location | Industrial Park,Near Airport,Near Seaport |
Property Style | Commercial Lease |
Price | $12,000 |
Previous Price | $19 (30 days ago) |
Property Status | Active |
MLS Number | A11866873 |
Property Size | 7600 |
Lot Size | 7600 |
Year Built | 1997 |
Parking Space Number | 8 |
Folio Number | 35-30-30-029-0060 |
Zoning Information | 7700 |
Days on Market | 43 |
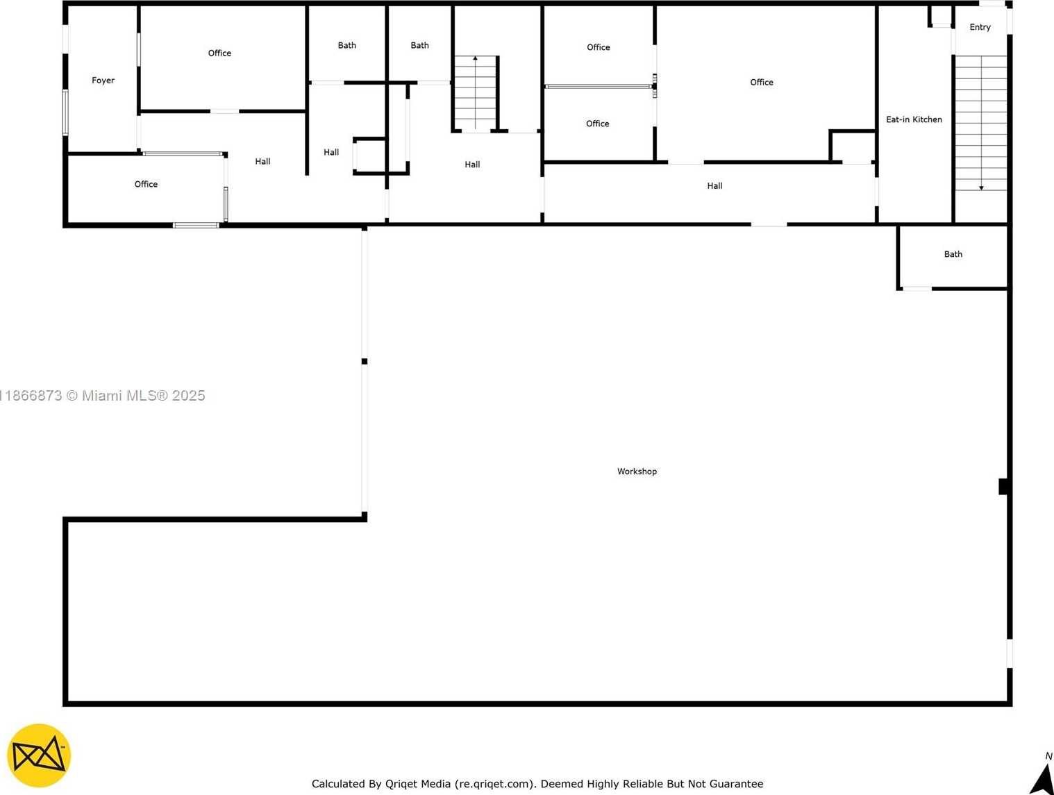
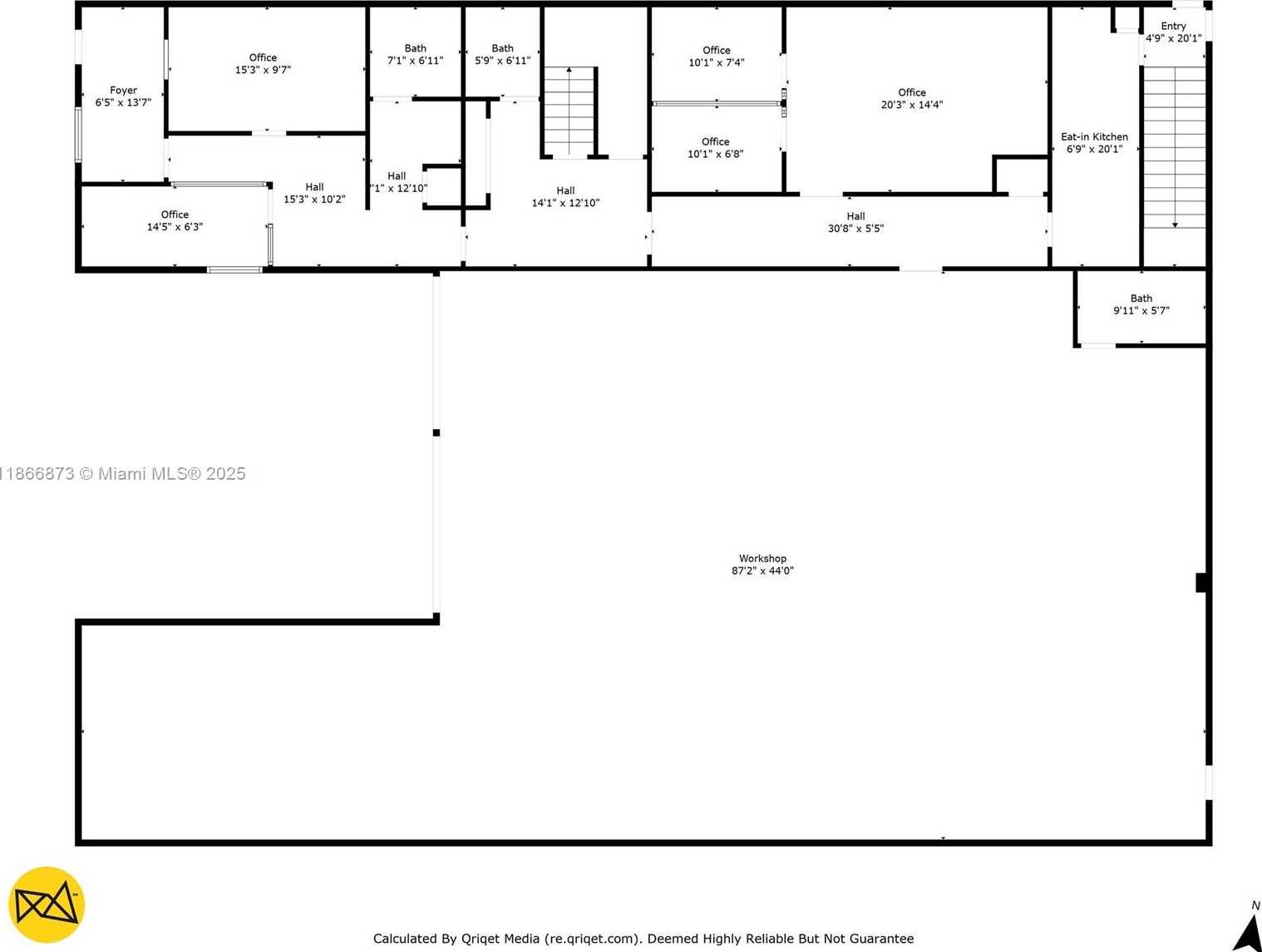
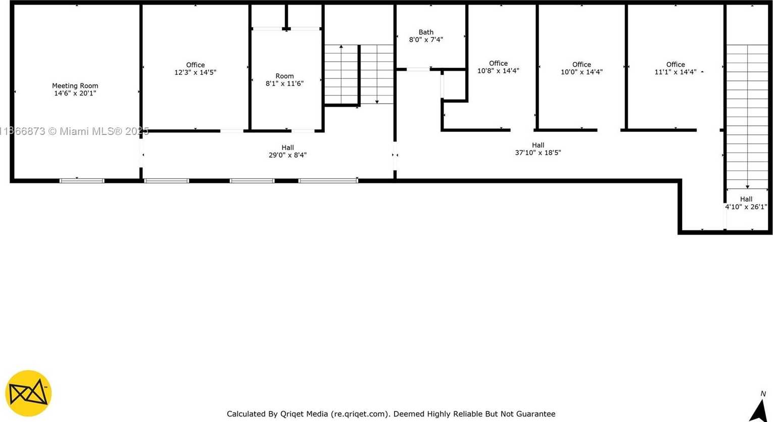
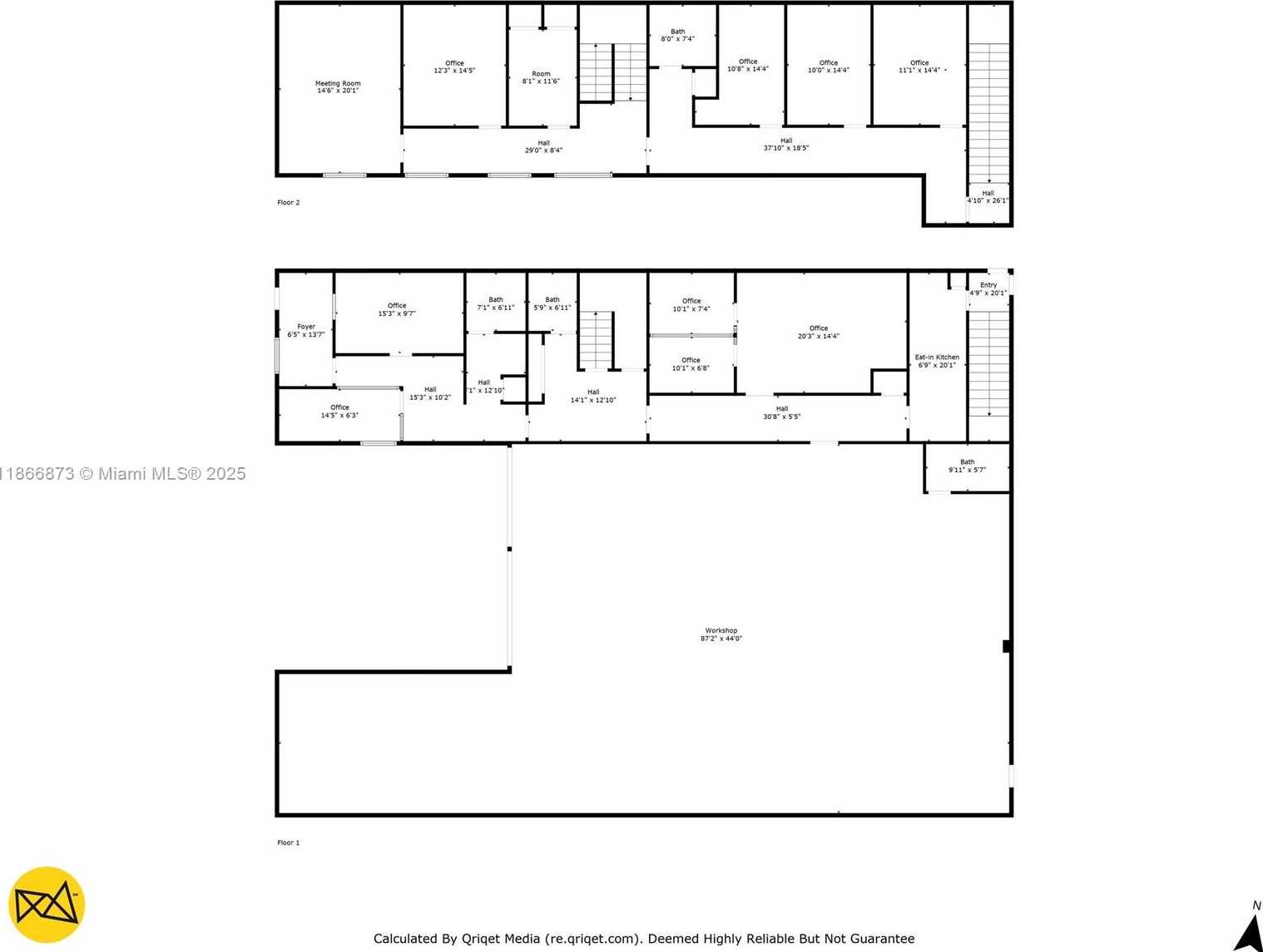
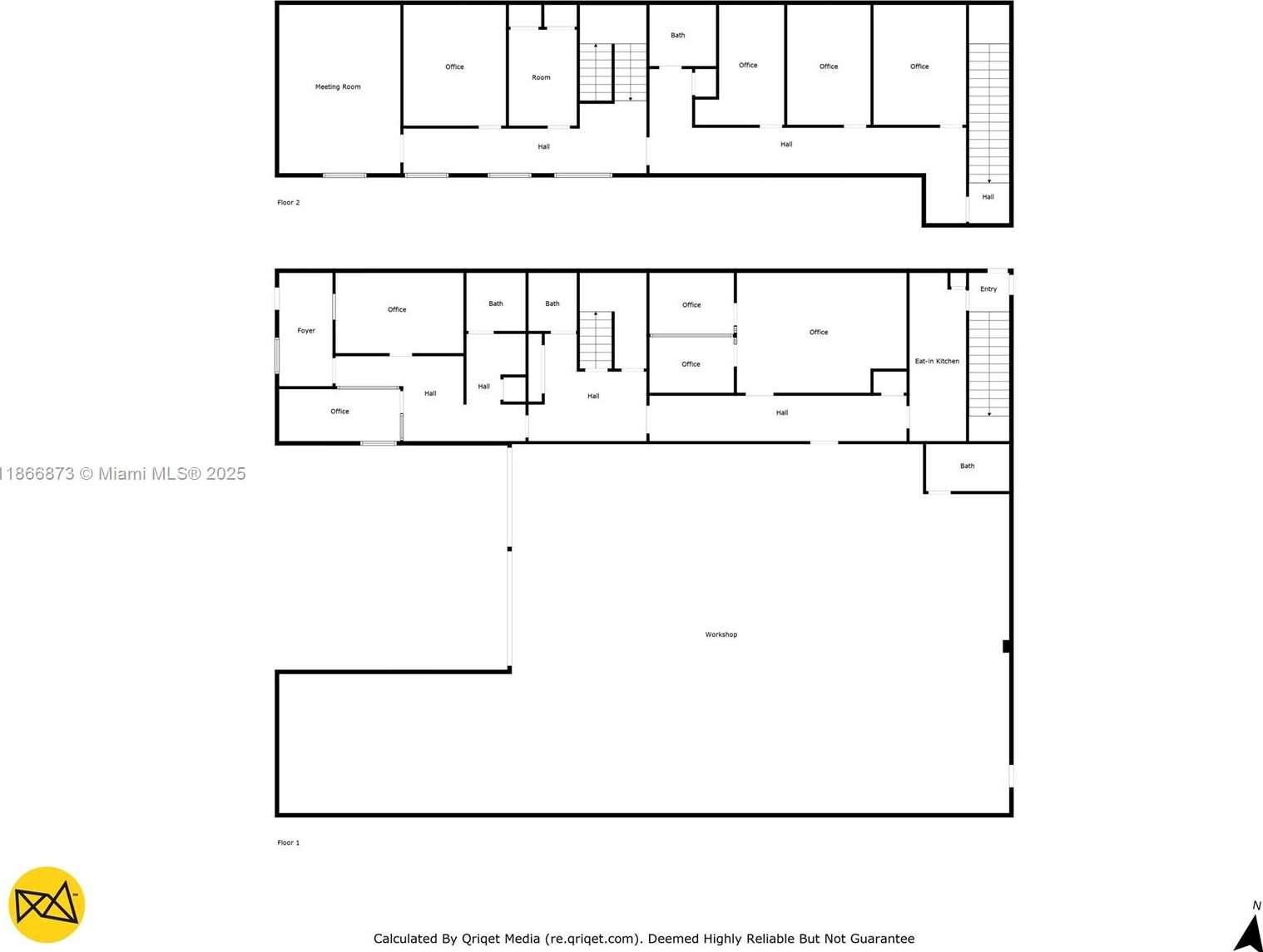
Detailed Description: FOR RENT DORAL LUXURY 2-STORY HIGH-END OFFICE and WAREHOUSE, APPROXIMATELY 7,599 + SF OF USABLE SPACE. APPROXIMATELY 3,837 sq.ft OF WAREHOUSE SPACE AND 3,762 sq.ft OF OFFICE SPACE. WITH 24′ CEILING HEIGHT AND TWO TRUCK DOORS (STREET-LEVEL AND DOCK-HIGH). WAREHOUSE FEATURES STEELREINFORCED WALLS AND DOORS FOR ENHANCED SECURITY. INCLUDE 8 DEDICATED PARKING SPACES, SECURITY CAMERA SYSTEM and ALARM PRE-WIRED. 11 OFFICES IN TOTAL. FIRST FLOOR: RECEPTION AREA, 3 OFFICES, 2 BATHROOMS, IT-SECURED ROOM, AND SPACIOUS EAT-IN KITCHEN. SECOND FLOOR: 3 OFFICES, 2 LARGE CONFERENCE ROOMS, AND 1 BATHROOM. WAREHOUSE AREA: STORAGE ROOM PLUS A / C-COOLED BATHROOM WITH SHOWER. EXCELLENT CENTRAL LOCATION NEAR MIA INTERNATIONAL AIRPORT, FLORIDA TURNPIKE, PALMETTO EXPRESSWAY, FEDEX DEPOT, AND MAJOR MALLS.
Internet
Property added to favorites
Loan
Mortgage
Expert
Hide
Address Information
State | Florida |
City | Doral |
County | Miami-Dade County |
Zip Code | 33172 |
Address | 10840 NORTH WEST 27TH ST |
Business Location | Industrial Park,Near Airport,Near Seaport |
Section | 30 |
Zip Code (4 Digits) | 5907 |
Financial Information
Price | $12,000 |
Price per Foot | $0 |
Previous Price | $19 |
Folio Number | 35-30-30-029-0060 |
Tax Amount | $20,181 |
Full Descriptions
Detailed Description | FOR RENT DORAL LUXURY 2-STORY HIGH-END OFFICE and WAREHOUSE, APPROXIMATELY 7,599 + SF OF USABLE SPACE. APPROXIMATELY 3,837 sq.ft OF WAREHOUSE SPACE AND 3,762 sq.ft OF OFFICE SPACE. WITH 24′ CEILING HEIGHT AND TWO TRUCK DOORS (STREET-LEVEL AND DOCK-HIGH). WAREHOUSE FEATURES STEELREINFORCED WALLS AND DOORS FOR ENHANCED SECURITY. INCLUDE 8 DEDICATED PARKING SPACES, SECURITY CAMERA SYSTEM and ALARM PRE-WIRED. 11 OFFICES IN TOTAL. FIRST FLOOR: RECEPTION AREA, 3 OFFICES, 2 BATHROOMS, IT-SECURED ROOM, AND SPACIOUS EAT-IN KITCHEN. SECOND FLOOR: 3 OFFICES, 2 LARGE CONFERENCE ROOMS, AND 1 BATHROOM. WAREHOUSE AREA: STORAGE ROOM PLUS A / C-COOLED BATHROOM WITH SHOWER. EXCELLENT CENTRAL LOCATION NEAR MIA INTERNATIONAL AIRPORT, FLORIDA TURNPIKE, PALMETTO EXPRESSWAY, FEDEX DEPOT, AND MAJOR MALLS. |
How to Reach | 107 AVENUE NORTH TO 27 ST RIGHT, COMPLEX ON RIGHT |
Floor Description | Ceramic Floor, Tile |
Cooling Description | Central Individual A / C |
Heating Description | Central Individual A / C |
Water Description | Public |
Sewer Description | Other |
Parking Description | Additional Spaces Available, Assigned |
Property parameters
Living Area | 7600 |
Lot Size | 7600 |
Total Acreage | 0.000 |
Zoning Information | 7700 |
Maximum Leasable Size | 7600 |
Year Built | 1997 |
Type of Property | Industrial |
Type of Business | Industrial, Office / Warehouse Combination |
Style | Commercial Lease |
Construction Type | Concrete Block Construction,Concrete Block With Brick |
Stories Number | 2 |
Street Direction | North West |
Parking Space Number | 8 |
Listed with | Prestige Global Realty |